リーブルグラント四谷三丁目
- 2025年6月25日
- 2025年12月4日
コメント
「LIBR GRANT 四谷三丁目(リーブルグラント四谷三丁目)」は、まるで都会のオアシスのように新宿区四谷の静寂に佇む、魅力に満ちたマンシ... もっと読む
| 所在地: | 東京都新宿区四谷4-12-1 |
|---|---|
| 交通 | 東京メトロ丸ノ内線 四谷三丁目駅 徒歩3分 都営地下鉄新宿線 曙橋駅 徒歩9分 JR中央線 信濃町駅 徒歩14分 JR総武線 信濃町駅 徒歩14分 |
| 築年月: | 2023年2月 |
| 家賃帯: | 181,000円 〜 313,000円 |
|---|---|
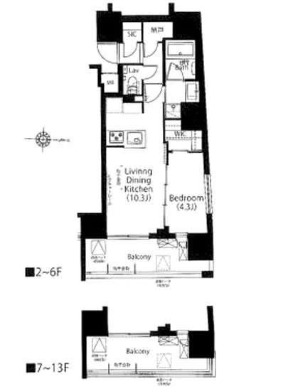
| 間取り: | 1LDK 〜 2LDK |
| 平米数: | 34.09㎡ 〜 57.75㎡ |
部屋情報
仲介手数料割引キャンペーン
仲介手数料割引キャンペーン















