ピークス神田
- 2025年6月25日
- 2025年12月4日
コメント
千代田区神田西福田町に響き渡る、洗練された足音が「ピークス神田」のエントランスへと導きます。この高級賃貸マンションは、モダンでありながらも上... もっと読む
| 所在地: | 東京都千代田区神田西福田町4-7 |
|---|---|
| 交通 | 東京メトロ銀座線 神田駅 徒歩5分 JR中央線 神田駅 徒歩5分 JR京浜東北線 神田駅 徒歩5分 JR山手線 神田駅 徒歩5分 東京メトロ半蔵門線 三越前駅 徒歩5分 |
| 築年月: | 2017年8月 |
| 家賃帯: | 151,000円 〜 220,000円 |
|---|---|
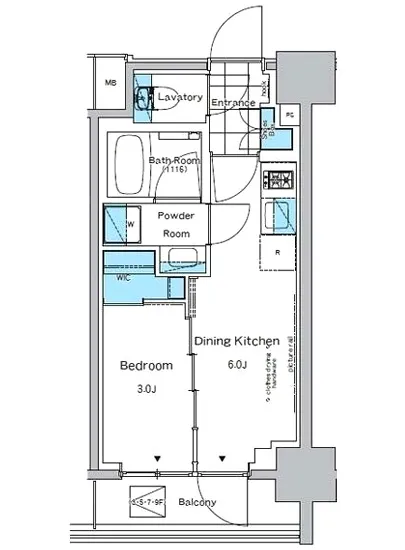
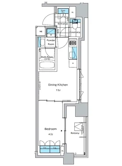
| 間取り: | 1R 〜 1LDK |
| 平米数: | 25.56㎡ 〜 40.13㎡ |
部屋情報
仲介手数料無料
礼金ゼロ
初期費用キャッシュバック
仲介手数料無料
礼金ゼロ
初期費用キャッシュバック




















